Los Angeles Affordable Housing Challenge | competition
Los Angeles, USA [2023]

exterior view
LA, a city without cars.
What if Los Angeles became a city where reliance on cars significantly diminished, transforming the vast parking spaces into available land? Could we envision a system where downtown parking facilities gradually evolve into affordable housing units as the number of vehicles decreases? This future anticipates a surplus of abandoned parking facilities resulting from the shift to sustainable transportation, creating an opportunity to redevelop these spaces into new collective areas for the city. The growing number of vacant parking facilities could serve as social platforms for the development of new, affordable housing units

mapping LA carparkscape



LA carpark typologies
reinterpreting open architecture principles.
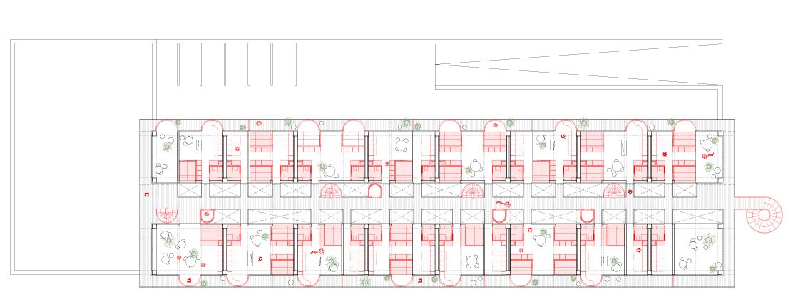
The project develops a modular system for affordable housing by repurposing parking spaces in the city of Los Angeles. The fundamental module is designed around the minimum size of a parking space (2,5x5 meters), enabling the construction of buildings that seamlessly fit within the parking space. An incremental aggregation system is proposed, facilitating the utilization of existing conditions and enabling a flexible and coherent approach to construction. Envisaging the car park’s facilities as a supports, the concept involves transforming its interior through modular, functional infills. These infills can be easily dismantled or reconfigured as needed.
typologies study


plans

main elevation
LAH
2023
